※図面クリック拡大表示
{コマンド名}※マクロ名含む
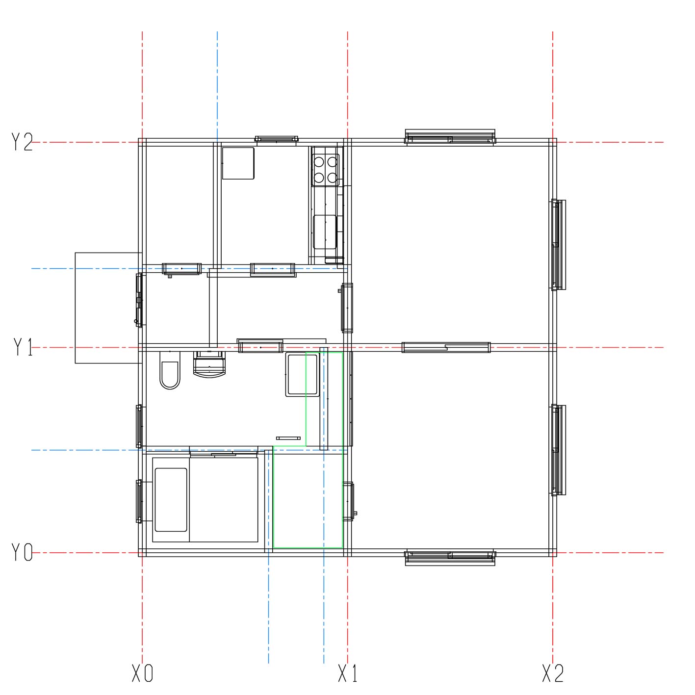
● 開口部品の作成
- 開口部品は下図を参考に一覧ファイルを制作
- 壁面穴あけ材は部品解除後、壁面を穴あけ{差}
- 窓:シャッター雨戸付きアルミ窓 1600w×900h
- 開口部の原点は、壁芯中心上部
- 窓は開口面に後付け
- 窓ガラス(t=20mm)を薄くしているため、各窓部品に分け、水平に倒して印刷
- ドア:木製片開きドア 800w×2000h
- 開口部の原点は、壁芯中心下部
- 枠扉とも壁に先付け
● 建具の配置
- 部品化した建具および穴あけ部材を壁内に配置し、壁に穴を開け
- 建具・穴あけ部材を平面に配置し、{ プロパティ-形状-位置Z }を調整
- 開口部の確認
□窓は、ユニットバス配置後穴あけ |
{ 移動 } 正面(Y1):-75 側面(Y0):-3975 中央(Y1):-3975 { 複写 } Y0,Y2通り { ミラー複写 } X2通り |
開口部表示 |
| [ アイソメビュー ] | [ アイソメビュー ] |
陰線処理 |
||
| [ アイソメビュー ] | ||
● 家具・備品の作成
- 天袋やフードは、壁面取付用サポート材に取付 (背面の一部をカット)







開口部表示


